Vorentwurf für Bebauungsplan
HandewittWettbewerb Dorfentwicklung
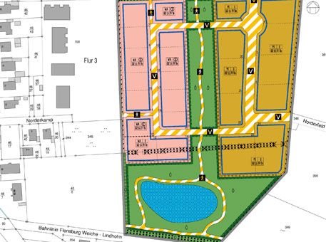
NordstrandBebauungsplan Nr.15
AchtrupBebauungsplan Nr. 40
BredstedtF-Plan und Bebauungsplan Nr. 9
BreklumBebauungsplan Nr. 17
HeideBebauungsplan Nr. 7
TatingBebauungspläne
NiebüllFlächennutzungsplan
OckholmBebauungsplan Nr. 67
SchwabstedtBebauungsplan Nr. 5
WittbekBebauungsplan Nr. 20
BredstedtBebauungsplan Nr. 5
ReußenkögeBebauungsplan Nr. 16
StruckumUnsere Leistungen Stadtplanung
Vorbereitende und verbindliche Bauleitplanung:Flächennutzungsplanung in Verbindung mit Landschaftsplanung, GIS Bearbeitung, Digitalisierung
Erstellung von Bebauungsplänen und vorhabenbezogenen Bebauungsplänen in
Verbindung mit einem Umweltbericht
Städtebauliche Satzungen, Richtlinien, Empfehlungen
Gestaltungskonzepte, Gestaltungssatzungen, Gestaltungsempfehlungen
Machbarkeitsstudien
Anschauliche Darstellung, Animation, Visualisierung
Bauleitplanung
Die Bauleitplanung ist das zentrale Instrument der Gemeinden zur
rechtlichen Regelung über die Nutzung von Grund und Boden.
Hierzu erarbeiten wir die entsprechenden Planungen (F-Plan / B-Plan)
und begleiten die Gemeinden durch das Verfahren.